Trong bối cảnh quỹ đất nội thành TP.HCM ngày càng khan hiếm, xu hướng dịch chuyển về các đô thị vệ tinh quy hoạch bài bản trở thành yếu tố tất yếu. T&T City Millennia nổi lên như một “siêu dự án” tọa lạc ngay cửa ngõ Nam Sài Gòn. Với quy mô lên đến 267ha, đây không chỉ là một dự án nhà ở đơn thuần mà được định vị trở thành một “thành phố thiên niên kỷ” – nơi hội tụ nhịp sống hiện đại, không gian xanh và hạ tầng đồng bộ.
Dự án được phát triển bởi Tập đoàn T&T Group, mang kỳ vọng thay đổi hoàn toàn diện mạo đô thị của huyện Cần Giuộc, Long An, đồng thời tạo ra một cộng đồng dân cư văn minh, đẳng cấp nằm ngay sát vách khu đô thị Phú Mỹ Hưng.
| Hạng mục | Thông tin chi tiết |
| Tên dự án | T&T City Millennia (Thành phố Thiên Niên Kỷ) |
| Chủ đầu tư | Công ty CP Thái Sơn Long An (Thành viên T&T Group) |
| Vị trí | Đường Long Hậu, xã Long Hậu, huyện Cần Giuộc, Long An |
| Quy mô tổng thể | 267 ha |
| Loại hình sản phẩm | Shophouse, Nhà phố liền kề, Biệt thự song lập/đơn lập |
| Diện tích điển hình | 6x18m, 6x20m, 6x22m, 10x20m… |
| Pháp lý | Sổ hồng lâu dài (người Việt Nam), 50 năm (người nước ngoài) |
| Đơn vị quản lý | Savills Việt Nam (Dự kiến) |
| Ngân hàng hỗ trợ | SHB (Ngân hàng TMCP Sài Gòn – Hà Nội) |
Vị trí T&T City Millennia được giới đầu tư đánh giá là tọa độ “vàng” nhờ tiếp giáp trực tiếp với TP.HCM thông qua trục đường Lê Văn Lương kéo dài và đường Long Hậu.
Dự án nằm tại xã Long Hậu, Cần Giuộc – khu vực đang có tốc độ đô thị hóa nhanh nhất Long An. Khả năng kết nối từ dự án vô cùng ấn tượng:
5 phút: Đến KCN Long Hậu, KCN Hiệp Phước.
10 phút: Đến Cảng Quốc tế Hiệp Phước (một trong những cảng biển lớn nhất phía Nam).
15 phút: Đến khu đô thị Phú Mỹ Hưng, Quận 7 qua trục Nguyễn Hữu Thọ.
30 – 40 phút: Đến Trung tâm Quận 1 thông qua các trục đường chính.
Tuyến Metro số 4: Kết nối từ Thạnh Xuân (Quận 12) đến KCN Hiệp Phước, giúp việc di chuyển vào trung tâm chỉ còn tính bằng phút.
Cao tốc Bến Lức – Long Thành: Khi thông xe toàn tuyến, cư dân T&T City Millennia sẽ dễ dàng đi các tỉnh miền Tây và hướng ngược lại đi sân bay Quốc tế Long Thành mà không cần xuyên qua nội thành đông đúc.
Chủ đầu tư dự án là Công ty CP Thái Sơn Long An, một thành viên chủ chốt của Tập đoàn T&T Group.
T&T Group là tập đoàn kinh tế đa ngành hàng đầu Việt Nam với tiềm lực tài chính mạnh mẽ. Trong lĩnh vực bất động sản, T&T đã khẳng định vị thế qua hàng loạt dự án quy mô lớn trên cả nước như T&T Riverview (Hà Nội), T&T Victoria (Vinh). Việc bắt tay với các đối tác lớn như ngân hàng SHB (hỗ trợ tài chính) và các đơn vị thiết kế quốc tế cho thấy tâm huyết của chủ đầu tư trong việc kiến tạo một đô thị chuẩn mực quốc tế tại Long Hậu.
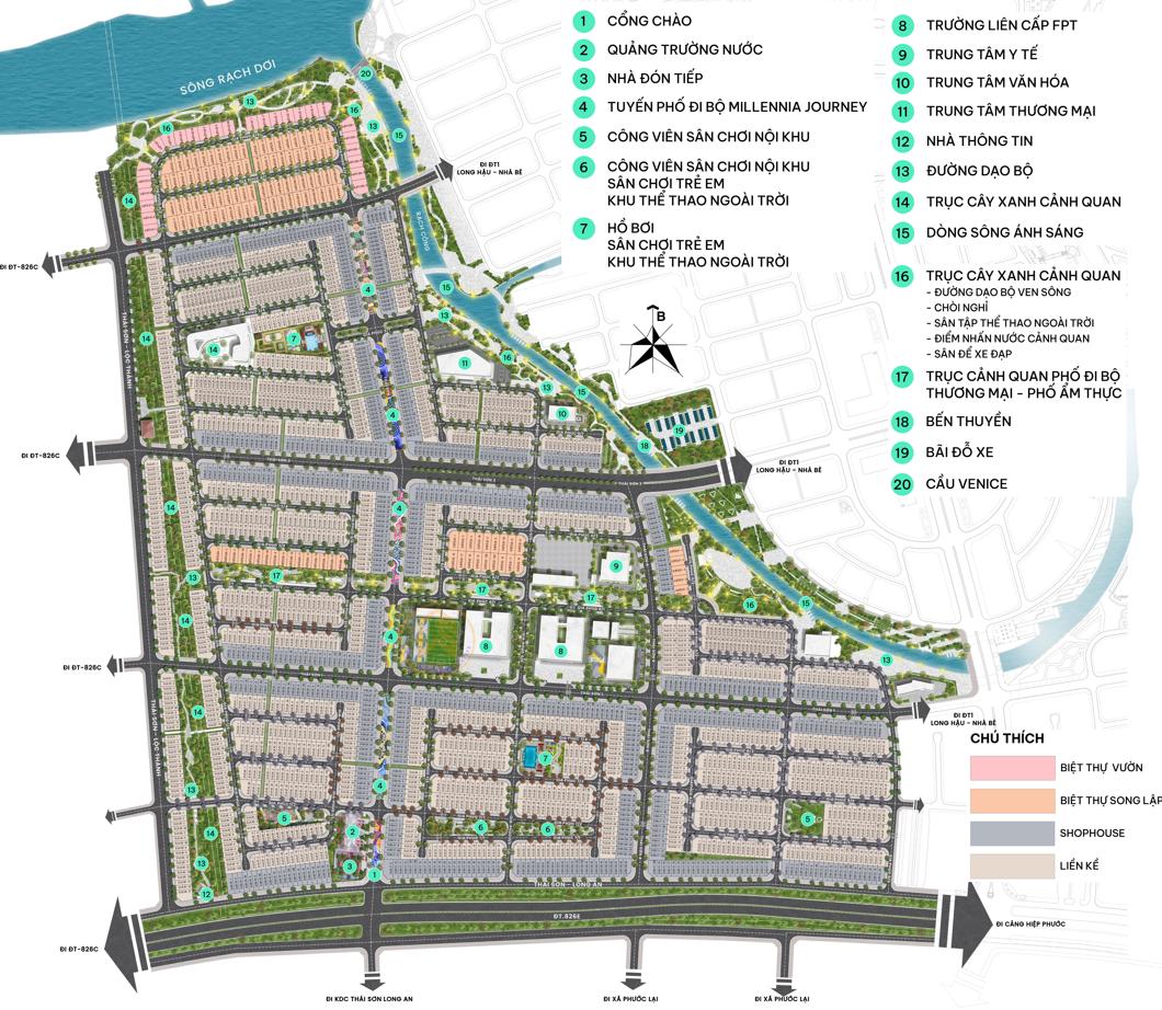
Dự án được quy hoạch bài bản với mật độ xây dựng thấp, ưu tiên diện tích cho cây xanh và mặt nước. Thiết kế của T&T City Millennia mang hơi hướng Á – Âu kết hợp, chia thành nhiều phân khu với các chủ đề khác nhau:
Phân khu 1: Tập trung vào các sản phẩm nhà phố và shophouse sôi động, nằm ngay trục đường chính vào dự án.
Phân khu 2 & 3: Hướng tới sự riêng tư và đẳng cấp với các căn biệt thự view sông thoáng đãng.
Hệ thống hạ tầng nội khu như điện âm, nước máy chuẩn quốc tế, vỉa hè lát đá và hệ thống chiếu sáng thông minh là điểm cộng lớn cho một dự án đại đô thị tại Long An.
Mặt bằng T&T City Millennia được thiết kế khoa học, đảm bảo mỗi căn nhà đều đón được tối đa ánh sáng và gió tự nhiên.
Diện tích phổ biến: 6x18m, 6x20m.
Xây dựng: 1 trệt 3 lầu.
Phù hợp cho gia đình trẻ hoặc nhà đầu tư cho thuê (đối tượng là chuyên gia làm việc tại KCN Long Hậu).
Vị trí: Nằm trên các trục đường lớn (đường 40m).
Công năng: Vừa ở vừa kinh doanh, tiềm năng khai thác thương mại cực cao nhờ cộng đồng cư dân nội khu quy mô lên đến hàng chục nghìn người.
Diện tích lớn: Từ 200m² – 400m².
Thiết kế sang trọng, nằm tại các vị trí yên tĩnh, view kênh đào nhân tạo hoặc công viên trung tâm.
Một trong những lý do khiến khách hàng lựa chọn T&T City Millennia chính là hệ sinh thái tiện ích nội khu “All-in-one” vượt trội:
Công viên trung tâm: Diện tích rộng lớn với hồ điều hòa, đường chạy bộ ven sông và khu cắm trại.
Hệ thống giáo dục: Trường học liên cấp từ mầm non đến trung học cơ sở ngay trong lòng dự án.
Trung tâm thương mại: Nơi hội tụ các thương hiệu mua sắm, ẩm thực và dịch vụ giải trí cao cấp.
An ninh 24/7: Hệ thống camera giám sát thông minh và đội ngũ bảo vệ chuyên nghiệp đảm bảo môi trường sống an toàn tuyệt đối.
Theo cập nhật mới nhất năm 2026, giá bán T&T City Millennia dao động từ:
Nhà phố/Shophouse: Khoảng 4,5 tỷ – 9 tỷ/căn (tùy diện tích và vị trí đường).
Đất nền (giai đoạn cũ): Đã có sự tăng trưởng ổn định, tính thanh khoản tốt trên thị trường thứ cấp.
So với các dự án tại Nhà Bè (giáp ranh) như GS Zeitgeist, giá tại T&T City Millennia vẫn còn rất hấp dẫn (thường chỉ bằng 1/2 giá khu vực lân cận thuộc TP.HCM), trong khi khoảng cách di chuyển thực tế chỉ chênh lệch vài phút. Điều này tạo ra dư địa tăng giá mạnh mẽ khi hạ tầng giao thông kết nối hoàn thiện đồng bộ.
Pháp lý là điểm sáng lớn nhất của T&T City Millennia. Dự án đã hoàn thiện các thủ tục pháp lý quan trọng bao gồm:
Quyết định phê duyệt quy hoạch 1/500.
Quyết định giao đất và hoàn tất nghĩa vụ tài chính về đất đai.
Giấy phép xây dựng cho các phân khu đang triển khai.
Việc minh bạch về pháp lý giúp khách hàng yên tâm về quyền sở hữu lâu dài và dễ dàng tiếp cận các gói vay ưu đãi từ ngân hàng đồng hành SHB.
Chủ đầu tư T&T Group cùng các nhà thầu đang đẩy nhanh tiến độ thi công. Hiện trạng dự án ghi nhận:
Hạ tầng giao thông nội khu cơ bản đã hoàn thiện.
Các dãy nhà phố, shophouse phân khu đầu tiên đã bàn giao và bắt đầu có cư dân về sinh sống, kinh doanh.
Cảnh quan công viên, cây xanh được chăm sóc bài bản, tạo nên diện mạo đô thị hiện đại.
Quy mô đại đô thị: Quy hoạch bài bản trên 267ha, không gian sống xanh chiếm tỷ trọng lớn.
Vị trí chiến lược: Sát vách TP.HCM, kết nối thuận tiện với khu Nam Sài Gòn và hệ thống cảng biển.
Chủ đầu tư uy tín: T&T Group đảm bảo năng lực tài chính và vận hành.
Pháp lý sạch: Đảm bảo an toàn tuyệt đối cho dòng vốn của khách hàng.
Dù sở hữu nhiều ưu điểm, khách hàng khi tìm hiểu có nên mua T&T City Millennia cũng cần lưu ý:
Tầm nhìn dài hạn: Đây là đại dự án, cần thời gian để lấp đầy cư dân và phát triển trọn vẹn các tiện ích lớn. Khách hàng nên chuẩn bị kế hoạch tài chính cho mục tiêu từ 3-5 năm.
Hạ tầng kết nối: Cần theo dõi sát tiến độ mở rộng đường Lê Văn Lương và cầu Long Kiểng để tối ưu hóa thời điểm đầu tư.
T&T City Millennia hội tụ đủ 3 yếu tố của một bất động sản giá trị: Cận thị (Gần Phú Mỹ Hưng), Cận giang (Giáp sông Soài Rạp), Cận lộ (Mặt tiền đường Long Hậu).
Tiềm năng sinh lời đến từ việc Cần Giuộc đang được đẩy mạnh lên Thành phố trực thuộc tỉnh, cùng với sự phát triển mạnh mẽ của cụm đô thị cảng Hiệp Phước. Việc sở hữu nhà phố tại đây không chỉ mang lại giá trị gia tăng tài sản mà còn có thể khai thác dòng tiền từ việc cho các chuyên gia tại các KCN lân cận thuê.
Nhà đầu tư: Những người tìm kiếm kênh trú ẩn an toàn, ưu tiên pháp lý và tiềm năng tăng trưởng bền vững theo hạ tầng.
Người mua ở thực: Các gia đình làm việc tại khu vực Quận 7, Nhà Bè muốn sở hữu không gian sống rộng rãi, chất lượng cao với mức giá vừa tầm.
Chủ doanh nghiệp/Chuyên gia: Cần một nơi cư trú đẳng cấp gần các khu công nghiệp phía Nam để thuận tiện công việc.
T&T City Millennia xứng đáng là dự án tiêu điểm tại thị trường bất động sản phía Nam. Với sự đầu tư nghiêm túc từ T&T Group, vị trí chiến lược và pháp lý minh bạch, đây là lựa chọn hàng đầu cho cả nhu cầu an cư lẫn đầu tư sinh lời. Nếu bạn đang tìm kiếm một “thành phố thu nhỏ” hiện đại ngay sát thềm TP.HCM, T&T City Millennia chính là câu trả lời hoàn hảo.
Please enter the 6-digit OTP sent to your email.
Time remaining: 05:00