Nhà Định Danh - Mua bán nhà đất
  • Trang chủ
0919 358 968
Nhà Định Danh - Mua bán nhà đất
  • Trang chủ
0919 358 968
Dự án Căn hộ

The Harmona Tân Bình

Liên hệ: 0919 358 968

33 Trương Công Định, Phường 14, Quận Tân Bình, Tp Hồ Chí Minh

Tổng quan

|
Mã MKR-27090

Thông tin

Căn hộ The Harmona là cao ốc căn hộ kết hợp Trung tâm thương mại, tọa lạc tại 33 Trương Công Định, Phường 14, Quận Tân Bình, Tp Hồ Chí Minh. Dự án do Công ty Cổ phần Vật tư Xuất nhập khẩu Tân Bình (Tamexim) đầu tư xây dựng. Với tổng diện tích khu đất 9.137m2, dự án được thiết kế gồm 03 block, cao từ 16 – 18 tầng, với khoảng trên 500 căn hộ điển hình và các căn hộ Penthouse, khu thương mại và công trình đường nội bộ và các công trình công cộng khác.

 

THÔNG TIN TỔNG QUAN DỰ ÁN THE HARMONA QUẬN TÂN BÌNH

  • Tên thương mại: The Harmona
  • Địa chỉ: Số 33 Trương Công Định, Phường 14, Quận Tân Bình, Tp Hồ Chí Minh
  • Chủ đầu tư: Công ty Xuất nhập khẩu Vật tư Tân Bình (Tamexim)
  • Quy mô: The Harmona cao 19 tầng, bao gồm 3 block A, B và C
    • Block A và block B: Mỗi block có 202 căn hộ bao gồm loại căn hộ có 1, 2, 3 phòng ngủ
    • Block C: có 165 căn hộ, bao gồm loại căn hộ 2, 3 phòng ngủ và căn hộ penthouse
  • Diện tích khu thương mại – dịch vụ: 2.942,26m2
  • Khu nhà giữ trẻ The Harmona: 357m2
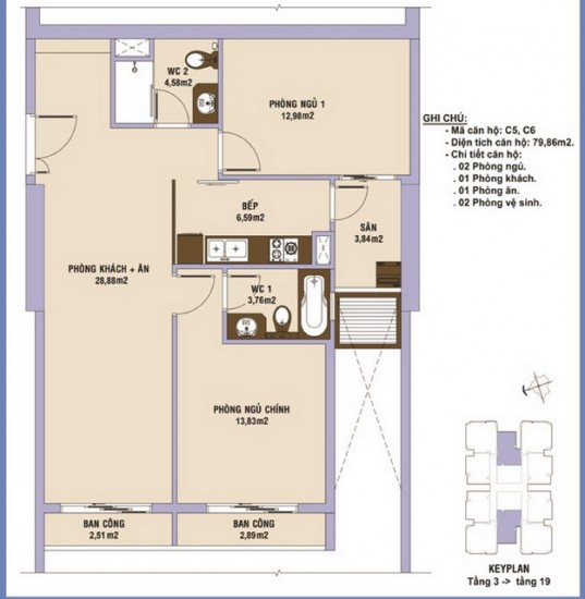
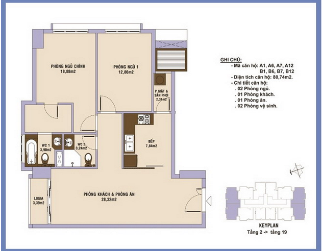
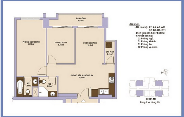
  • Diện tích các căn hộ: 72m2 – 74.65m2 – 80,74m2 – 96.07m2 với 1,2,3 phòng ngủ

GIỚI THIỆU CHỦ ĐẦU TƯ DỰ ÁN THE HARMONA

Công ty Cổ phần Vật tư Xuất nhập khẩu Tân Bình (Tamexim) tọa lạc tại Số 391 Trường Chinh, Phường 14, Quận Tân Bình, Thành phố Hồ Chí Minh là doanh nghiệp hoạt động chủ yếu trong lĩnh vực may mặc và cung cấp phụ liệu.
Một số ngành nghề chính của công ty:

  • Xây dựng nhà các loại
  • Kinh doanh bất động sản, quyền sử dụng đất thuộc chủ sở hữu, chủ sử dụng hoặc đi thuê
  • Bán buôn ô tô và xe có động cơ khác
  • Chế biến, bảo quản thuỷ sản và các sản phẩm từ thuỷ sản
  • Bán buôn chuyên doanh khác chưa được phân vào đâu
  • Bán buôn thiết bị và linh kiện điện tử, viễn thông
  • May trang phục (trừ trang phục từ da lông thú),…

VỊ TRÍ CĂN HỘ THE HARMONA

Căn hộ The Harmona tọa lạc tại số 33 Trương Công Định, Phường 14, Quận Tân Bình, Tp Hồ Chí Minh. The Harmona nằm ngay khu trung tâm hành chính của Quận Tân Bình. Xung quanh dự án là khu dân cư hiện hữu sầm uất, đặc biệt là khu Bàu Cát nổi tiếng của quận Tân Bình.

Trong vòng 15 phút, cư dân tại căn hộ The Harmona có thể dễ dàng tiếp cận với các siêu thị như Big C, Lottle, Maximart, Aeon Mall, Co.op Mart; Hệ thống trường học từ cấp 1, 2, 3, các trung tâm giáo dục; Khu Etow trên đường cộng hòa; Các bệnh viện lớn như bệnh viện Thống Nhất, bệnh viện Tân Phú… ; Sân bay Tân Sơn Nhất; Rạp chiếu phim Galaxy.

 

TIỆN ÍCH DỰ ÁN THE HARMONA

The Harmona được chủ đầu tư chú trọng đầu tư hệ thống tiện ích cực kì đẳng cấp, cư dân sống trong căn hộ The Harmona sẽ nhận được nhiều giá trị sống rất cao.

MẶT BẰNG CHUNG CƯ THE HARMONA

The Harmona sở hữu mặt tiền đường Trương Công Định, nằm ngay khu trung tâm hành chính của Quận Tân Bình.

 

THIẾT KẾ CĂN HỘ DỰ ÁN THE HARMONA

Các căn hộ tại The Harmona đều có 2 mặt thoáng, tăng diện tiếp xúc với không gian bên ngoài, giúp hấp thu tốt nhất ánh sáng tự nhiên. Căn hộ Penthouse ở tầng trên cùng được thiết kế độc đáp ứng cho nhu cầu của những người thành đạt, những gia đình có người lớn tuổi cần có khoảng không gian nhất định để thư giãn.

NHÀ MẪU DỰ ÁN THE HARMONA

NỘI THẤT BÀN GIAO CĂN HỘ THE HARMONA

Chung cư The Harmona được chủ đầu tư bàn giao nhà hoàn thiện cơ bản, với các trang thiết bị đến từ các thương hiệu có tiếng trên thị trường:

BẢNG GIÁ VÀ PHƯƠNG THỨC THANH TOÁN THE HARMONA

Dự án căn hộ The Harmona đã được bàn giao cho khách hàng vào thời gian quý 3/2013. Và đến thời điểm năm 2021, giá bán trung bình của dự án này đang rơi vào khoảng từ 37 – 47 triệu/m2. Đây là mức giá được đánh giá khá tốt so với những ưu thế về vị trí, thiết kế, tiện ích mà dự án đang sở hữu.

    ĐĂNG KÝ NHẬN BÁO GIÁ & TÀI LIỆU DỰ ÁN

    HOTLINE, ZALO 0919 358 968

    Bất động sản dành cho bạn

    Dự án

    The River Thủ Thiêm

    Lô 3, 15 Đ. Trần Bạch Đằng, P, Quận 2, Thành phố Thủ Đức, Việt Nam
    Căn hộ

    Liên hệ: 0919 358 968

    Added: 13/09/2021

    Dự án

    Palm Heights – Palm City

    An Phú, Quận 2, Thành phố Hồ Chí Minh, Việt Nam
    Căn hộ

    Liên hệ: 0919 358 968

    Added: 12/09/2021

    Dự án

    Champaca Garden Dĩ An

    Đông Hòa, Thành phố Dĩ An, Tỉnh Bình Dương
    Nhà phố

    Liên hệ: 0919 358 968

    Added: 09/09/2021

    Liên hệ ngay 0919 358 968
    Nhà Định Danh – Mua bán nhà đất
    • Login
    Forget Password?

    OTP Verification

    Please enter the 6-digit OTP sent to your email.

    Time remaining: 05:00