Vị trí dự án Khu dân cư Vĩnh Phú 2 thuộc Phường Vĩnh Phú, TP Thuận An, Tỉnh Bình Dương, cách ngã tư Bình Phước khoảng 3km, gần khu du lịch Dìn Ký.

Bên trong dự án Khu dân cư Vĩnh Phú 2 có các tiện ích nội khu như: 2 có trường học các cấp, khu trung tâm thương mại, dịch vụ, trung tâm thể dục thể thao, khu công viên cây xanh rộng tới 13.025m2,…
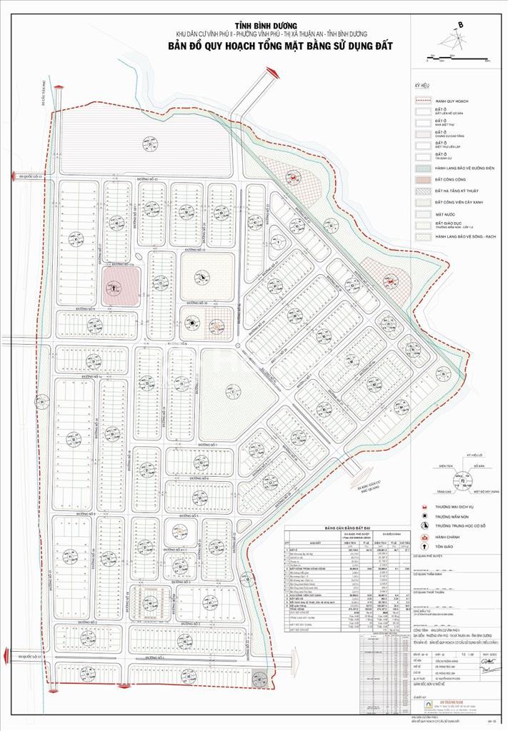
Mặt bằng Khu dân cư Vĩnh Phú 2
Dự án đất nền Khu dân cư Vĩnh Phú 2 được quy hoạch nằm trên khu đất có tổng diện tích 474,700 m2 với mật độ xây dựng 48,74%. Trong đó đất nhà ở là 224.165 m2, đất công trình công cộng là 18.387 m2, đất dành cho cây xanh – thể dục thể thao 13.025 m2, đất giao thông – đất hành lang dọc sông là 219.152 m2
Quy mô dự án Khu dân cư Vĩnh Phú 2 gồm 893 lô Nhà liên kế và nhà phố, có diện tích từ 120 – 140m2; và 146 lô nhà biệt thự có diện tích từ 360 – 500m2, với mật độ xây dựng từ 45% – 50%. Ngoài ra, còn có khu căn hộ chung cư 5 tầng với tổng diện tích đất 25.709m2.





