Dự án Khu đô thị Him Lam City hay Khu đô thị Sài Gòn Bình An do chủ đầu tư uy tín Công ty Cổ phần Đầu tư và Phát triển Sài Gòn (thuộc Tập đoàn Him Lam) triển khai.Dự án hiện đang tọa lạc tại vị trí đắc địa thuộc phường An Phú, TP. Thủ Đức, TP. HCM. Sau thành công của nhiều dự án biệt thự, nhà phố và căn hộ trên khắp các khu đất phồn thịnh của Sài Gòn. Nay chủ đầu tư đã lựa chọn Him Lam City làm dự án tiếp theo để xây dựng và triển khai thành một khu đô thị rộng lớn lên đến 117ha.
Đây là dự án được giới chuyên gia bất động sản đánh giá là có vị trí vàng và quỹ đất đáng sống, đáng đầu tư hàng đầu tại TP. Thủ Đức hiện nay. Dự án gồm có nhà phố, căn hộ cao tầng, biệt thự và đặc biệt là các tiện ích compound.

| Tên thương mại | Him Lam City |
| Vị trí dự án | • Mặt tiền đường cao tốc Tp. Hồ Chí Minh Long Thành – Dầu Giây, Phường An Phú, Quận 2, Tp. Hồ Chí Minh |
| Chủ đầu tư | • Him Lam Group |
| Thiết kế | • Công ty TNHH Tư vấn Thiết kế Xây dựng Anh Linh |
| Tổng thầu xây dựng | • CBM |
| Thi công móng cọc | • CBM |
| Tổng diện tích | • 1.174.221,9 m2 |
| Mật độ xây dựng | • 30% |
| Loại hình đầu tư | • Căn hộ chung cư, Penhouse, biệt thự, nhà phố liên kế sân vườn, khách sạn |
| Quy mô dự án | • Khu nhà ở: 22ha gồm 2 tòa tháp với 132 căn hộ, 8 căn penhouse và 193 đất nền biệt thự, nhà phố liên kế sân vườn
• Khu liên hợp sân Golf: 92ha gồm CLB Golf, Sân Golf 18 lỗ, Khách sạn 400 phòng,… |
| Tiện ích Khu đô thị Sài Gòn Bình An – Him Lam City Quận 2 | • Thừa hưởng đầy đủ tiện ích ngay trung tâm Quận 2: siêu thị Vinatex, Bệnh viện đa khoa Quận 2, trường Quốc tế Dài Gòn Star, Parkson, Vincom,…
• Sở hữu tiện ích nội khu trọn vẹn: hồ bơi tràn bờ 500 m2, BBQ, CKhu Clubhouse, Sân Golf chuẩn quốc tế, Bến du thuyền, Hồ sinh thái, Khu tắm nắng, Hệ thống shophouse hiện đại,… |
| Khởi công xây dựng | • Năm 2021 |
| Dự kiến bàn giao | • Năm 2022 |
| Pháp lý Khu đô thị Sài Gòn Bình An – Him Lam City | • Sổ hồng lâu dài |
| Hình thức sở hữu | • Người Việt Nam: Sổ hồng lâu dài
• Người nước ngoài: Sở hữu 50 năm theo luật pháp hiện hành |
Công ty cổ phần Him Lam được thành lập ngày 01 tháng 9 năm 1994 với trên 20 năm kinh nghiệm kinh doanh trên thị trường bất động sản. Từ một công ty nhỏ chuyên kinh doanh địa ốc đến nay Him Lam đã trở thành một công ty lớn với 30 đơn vị thành viên và các công ty liên kết hoạt động trên nhiều lĩnh vực khác nhau như kinh doanh bất động sản, tài chính ngân hàng, khu vui chơi giải trí, sân golf tiêu chuẩn quốc tế,… chủ yếu hoạt động tại các thành phố lớn trên cả nước, trong đó mạnh nhất là Hà Nội và TP.HCM.
Trong quá trình hoạt động không ngừng nghỉ của mình, công ty đã thực hiện hơn 70 dự án nhà ở, khu đô thị lớn trên cả nước, chủ yếu nằm gần các trung tâm thành phố với các quỹ đất vàng. Trên thị trường bất động sản TP. HCM, Him Lam được đánh giá là một chủ đầu tư uy tín với hàng loạt các dự án lớn đã triển khai như:
Vị trí Khu đô thị Him Lam City toạ lạc ngay mặt tiền cao tốc Tp. Hồ Chí Minh Long Thành – Dầu Giây, Phường An Phú, Thủ Đức được ví như trung tâm ngay khu Đông với cơ sở hạ tầng giao thông phát triển và ngày càng hoàn thiện. Nút giao An Phú đoạn cắt với Mai Chí Thọ là điểm đầu của cao tốc Long Thành – Dầu Giây và là điểm cuối của đường Lương Định Của sau khi hoàn thành sẽ đẩy mạnh giá trị của dự án.

Dự án nằm giáp sông đem lại nguồn cảnh quan phong phú và không gian thoáng đãng. 4 phía dự án sở hữu kết nối vùng đa dạng:
Nhờ lợi thế tiếp giáp, từ vị trí dự án Khu đô thị Him Lam City cư dân nhanh chóng di chuyển đến trung tâm quận 1, quận 3, quận 5,. nhờ nhiều tuyến đường hướng về trung tâm như: Đỗ Xuân Hợp, Song Hành, Liên Phường, Võ Chí Công và thừa hưởng chuỗi tiện ích ngoại khu cao cấp.
KẾT NỐI GIAO THÔNG DỰ ÁN KHU ĐÔ THỊ HIM LAM BÌNH AN
Trong bán kinh 3km:
Trong bán kinh 5km:
Trong bán kính 10km:
Tiện ích Khu đô thị Sài Gòn Bình An – Him Lam City được chủ đầu tư chăm chút và vun vén tỉ mỉ đến từng chi tiết. Với 2 khu nhà ở cao cấp và khu liên hợp sân golf rộng 92ha, chủ đầu tư Him Lam Group kiến tạo nhiều hạng mục giải trí và chuỗi tiện ích dịch vụ cao cấp với mong muốn đáp ứng tối đa trải nghiệm và chất lượng cuộc sống cho cư dân tại đây. Sự đan xen giữa sự hiện đại cùng mảng xanh thiên nhiên tạo nên sự chan hòa và dịu mát cho tổng thể dự án.


Điểm nhấn tạo nên thương hiệu của một siêu dự án như Him Lam City là:

Xung quanh dự án Him Lam Bình An sở hữu chuỗi tiện ích ngoại khu cao cấp trong bán kính 3-5km như: Metro An Phú, Khu công nghệ cao quận 9, Trường đại học giao thông vận tải, trường quốc tế Bristish International School, Vinmart, Bệnh viện Quận 2, Khu thể thao Nam Rạch Chiếc – SaiGon Sports City,…
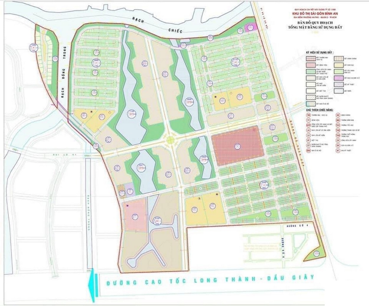
Mặt bằng chi tiết Khu đô thị Sài Gòn Bình An – Him Lam City được thiết kế một cách thông minh trên khuôn viên rộng 1.174.221,9 m2 chia thành hai phân khu riêng biệt: khu nhà ở cao cấp rộng 22ha gồm 2 tòa tháp với 132 căn hộ, 8 căn penhouse và 193 đất nền biệt thự, nhà phố liên kế sân vườn và Khu liên hợp sân Golf diện tích 92ha gồm CLB Golf, Sân Golf 18 lỗ, Khách sạn 400 phòng,…

Mặt bằng khu đô thị Him Lam City được quy hoạch đồng bộ, mật độ căn hộ ở mỗi sàn thấp đảm bảo tính riêng tư. 90% căn hộ là căn góc với 2-3 mặt thoáng. Với lợi thế giáp sông, dự án sở hữu tầm nhìn thoáng đãng cùng nguồn sinh khí dồi dào nâng cao chất lượng cuộc sống tinh thần và an sinh khỏe mạnh dành cho quý cư dân.
Thiết kế chi tiết dự án Him Lam City cực kỳ hiện đại và thông minh, dựa trên ý tưởng thiết kế khu đô thị thông minh trên thế giới, Him Lam Bình An sở hữu không gian kiến trúc độc đáo. Thiết kế tập trung hướng đến không gian sống xanh với mảng thiên nhiên lồng ghép trong khuôn viên tiện ích, đem lại sức sống tươi trẻ cho dự án.

Mỗi căn hộ của Him Lam City được tỉ mẩn đầu tư dưới bàn tay của các nhà thiết kế nổi tiếng khái quát được nét sang trọng, hiện đại, khẳng định vị thế của gia chủ. Diện tích căn hộ đa dạng, mỗi không gian riêng biệt đồng bộ hài hòa trong tone màu trắng chủ đạo đảm bảo tính nhất quán trong phối cảnh tổng thể, mở ra không gian sống đẳng cấp.
Nhà mẫu dự án lấy ý tưởng từ phong cách thiết kế châu Âu thời thượng và sang trọng. Mỗi không gian lồng ghép cùng cách bố trí nội thất hợp lí và tinh tế và tương tự với căn hộ thực tế bàn giao. Áp dụng thiết kế những mảng xanh trong không gian balcony tạo nên nguồn sức sống cho tổng thể căn hộ, đem đến những trải nghiệm trọn vẹn và ý nghĩa.



Nội thất bàn giao Khu đô thị Sài Gòn Bình An – Him Lam City được đánh giá rất tốt so với giá tiền và nhập khẩu từ nhiều thương hiệu nổi tiếng trên thế giới như Toto, Daikin, Aaron, Erado, Nhà Xinh,…
Him Lam City dự kiến chào bán ra thị trường có mức giá từ 60 – 80 triệu/1m2.
Phương thức thanh toán dự án Khu đô thị Him Lam City cực kỳ đa dạng và linh hoạt. Dự án được chia làm nhiều đợt thanh toán với tiến độ thanh toán giãn rộng giúp quý khách hàng có thể chủ động được dòng tiền và theo dõi cập nhật tiến độ dự án.
4,950,000,000,00
Added: 07/04/2026
5,400,000,000,00
Added: 03/04/2026
Please enter the 6-digit OTP sent to your email.
Time remaining: 05:00