Soi bóng xuống dòng Bến Nghé trong xanh, được ví như dòng sông Seine chảy êm đềm giữa lòng kinh đô ánh sáng Paris, Grand Riverside sở hữu tầm nhìn tuyệt đẹp về trung tâm Sài Gòn phồn hoa. Tọa lạc ngay mặt tiền đường Bến Vân Đồn, dự án Grand Riverside đặt một dấu ấn Châu Âu hoa lệ mà không phải dự án nào cũng có được. Kiến trúc tinh tế, cổ kính được bố trí trên từng lối đi, sảnh đón cho đến mỗi góc phòng, ban công ngập tràn hương hoa mỗi sớm mai. Đây là một trong số ít dự án căn hộ chung cư quận 4 có lối kiến trúc đẹp nhất.
Hình ảnh thực tế dự án căn hộ chung cư Grand Riverside Quận 4 mặt tiền đường Bến Vân Đồn
THÔNG TIN TỔNG QUAN DỰ ÁN GRAND RIVERSIDE QUẬN 4
| Tên thương mại | GRAND RIVERSIDE |
| Vị trí dự án | • 278 – 283 Bến Vân Đồn, Quận 4, Thành phố Hồ Chí Minh |
| Chủ đầu tư | • Công Ty CP TM & ĐT Hồng Hà |
| Thiết kế | • STOA ARCHITETTS |
| Tổng thầu xây dựng | • Hoà Bình |
| Thi công móng cọc | • Hoà Bình |
| Tổng diện tích | • 2,343 m² |
| Mật độ xây dựng | • 40% |
| Loại hình đầu tư | • Căn hộ chung cư cao cấp, Thương Mại, Dịch Vụ,Văn Phòng, Shophouse, Officetel |
| Quy mô dự án | • 2 hầm & 22 Tầng với 240 Căn Hộ• 231 Căn hộ & 09 Penthouse |
| Tiện ích Grand Riverside | • Trường mầm non và Trường Tiểu học, Công viên , ,Trung tâm thể dục thể thao (gym, spa, yoga…), Quảng trường, Vườn nướng BBQ, khu ẩm thực, thư viện, phòng sinh hoạt chung, đường chạy bộ, bể bơi… |
| Khởi công xây dựng | • Năm 2015 |
| Năm bàn giao | • Quý I/2018 |
| Pháp lý | • Sổ hồng |
| Hình thức sở hữu |
• Người Việt Nam: Lâu Dài • Người Nước Ngoài: 50 năm theo luật pháp hiện hành |
GIỚI THIỆU CHỦ ĐẦU TƯ DỰ ÁN GRAND RIVERSIDE
Công ty Cổ Phần Thương Mại Và Đầu Tư Hồng Hà
Hồng Hà hiện là chủ đầu tư nhiều dự án lớn như: Grand Riverside, Grand Central & South Gate Towers, công trình cao ốc văn phòng cho thuê tại 240/1 Pasteur (P.6, Q.3, Tp.HCM) quy mô 1 tầng hầm & 06 lầu đã đi vào khai thác từ năm 2009. Hồng Hà là đồng chủ đầu tư cùng Công ty Cổ phần Xây dựng số 5 trong các dự án tại Mỹ Đức, Mỹ Phước, các dự án cao ốc căn hộ như cao ốc Phúc Thịnh, The Manor và Saigon Pearl…
Hồng Hà coi đổi mới và năng động để phát triển bền vững; cam kết chất lượng là nguyên tắc ứng xử của mỗi thành viên phục vụ khách hàng và quan hệ đối tác. Tiên phong mở đường và mạnh dạn đương đầu vượt qua những thử thách tiếp nối thành công.
Công ty CP Thương mại và Đầu tư Hồng Hà đã và đang hợp tác với nhiều đối tác thiết kế, tư vấn, giám sát thi công có uy tín trong và ngoài nước như Perkin EastMan (Mỹ), SDK (Đức), STOA (Mỹ), Công ty Cổ phần Xây dựng & Kinh doanh địa ốc Hòa Bình, Công ty Cổ phần Không gian Hòa Bình, Công ty Kiểm định & Xây dựng Sài Gòn, Ngân hàng TMCP Hàng Hải, Phân viện Địa kỹ thuật Miền Nam, Công ty CP Đầu tư Địa ốc & Xây dựng Tiến Phát…
SAIGON PENTAVIEW
GRAND CENTRAL
SOUTH GATE TOWER
VỊ TRÍ CĂN HỘ GRAND RIVERSIDE
Vị trí dự án Grand Riverside tọa lạc tại số 278 – 283 Bến Vân Đồn, Quận 4, TP. HCM. Dự án Grand Riverside sở hữu một vị trí cực đẹp, ngay Mặt tiền Bến Vân Đồn cách trung tâm quận 1 chỉ 5 phút qua cầu Khánh Hội, cầu Calmette, cầu Ông Lãnh và nằm tại mặt tiền đường lớn giao thông đi lại qua các Quận 1, Quận 2, Quận 7 và Quận 5,8 qua cầu Nguyễn Văn Cừ.

Grand Riverside hội tụ đầy đủ những yếu tố tạo nên một khu căn hộ trọn vẹn vinh hoa “Nhất cận thị, nhị cận giang, tam cận lộ”. Chỉ cách trung tâm Quận 1 chưa đầy 5 phút, những chủ nhân tại căn hộ Grand Riverside sẽ rất thuận tiện trong việc di chuyển đến các khu vực trung tâm. Bên cạnh đó, những tiện ích như: hệ thống các trường đại học, trung tâm thương mại lớn, bệnh viện, khu vui chơi giải trí cũng chỉ cách dự án 10 phút đi xe.
TIỆN ÍCH DỰ ÁN GRAND RIVERSIDE
Giờ đây việc mang mọi tiện ích cao cấp đến gần bạn không còn là trong mơ khi ở tại dự án căn hộ Grand Riverside.
Tiện ích dự án Grand Riverside là một trong số ít các dự án ở khu vực trung tâm sài gòn sở hữu hàng loạt tổ hợp tiện ích cao cấp nội khu cũng như ngoại khu nhằm phục vụ tối đa cho nhu cầu an sinh của cư dân sinh sống trong căn hộ : Hồ bơi, Gym, Khu thương mại dịch vụ, giữ trẻ, phòng sinh hoạt cộng đồng và hệ thống an ninh 24/7 kết hợp hệ thống Audio Intercom.
Tiện ích hấp dẫn cho cư dân Grand Riverside
Tiện ích hấp dẫn cho cư dân Grand Riverside
Khu nhà hàng khách sạn sang trọng
Hồ bơi tràn viền độc đáo tại Grand Riverside
Trung tâm thương mại sầm uất
Phòng Spa hiện đại tại Grand Riverside
Với vị trí đắc địa bậc nhất Quận 4, nằm trên con đường sầm uất và ngày càng tiềm năng như Bến Vân Đồn, cư dân tại Dự án Grand Riverside dư sức thừa hưởng các tiện ích đắt giá bao quanh khu vực.

Tất cả mọi dịch vụ, nhu cầu sống của cư dân từ cơ bản đến nâng cao, đều sẽ được đáp ứng đầy đủ bởi dự án nằm ngay trong trung tâm thành phố Sài Gòn, cách Quận 1 chỉ 3-5 phút di chuyển. Một số tiện ích ngoại khu hấp dẫn vạn người mê có thể kể đến gồm:
– Công viên giải trí Khánh Hội 17.6 ha, công viên Nguyễn Kiệu…
– Bến Bạch Đằng, Cảng Nhà Rồng, Chợ Bến Thành, phố đi bộ Nguyễn Huệ
– Trường ĐH Luật, ĐH Tôn Đức Thắng, ĐH Khoa học Xã hội và Nhân văn TP HCM, ĐH RMIT…
– Trung tâm hành chính Quận 4: Công an Quận 4, UBND, Bệnh viện Quận 4…
– Khu đô thị Thủ Thiêm, Khu đô thị Phú Mỹ Hưng…
Có thể nói hệ thống tiện ích ngoại khu hiện hữu xứng tầm trung tâm thành phố tại dự án Grand Riverside. Ngoài ra dự án của chủ đầu tư Hồng Hà còn thừa hưởng các tiện ích ngoại khu sẵn có: bệnh viện, trường học, chợ, siêu thị, trung tâm thương mại…
MẶT BẰNG CHUNG CƯ GRAND RIVERSIDE
Phối cảnh tổng quan căn hộ Grand Riverside, gồm 1 Block cao 22 tầng, chỉ có 240 căn hộ, 2 tầng hầm và 2 tầng trung tâm thương mại.

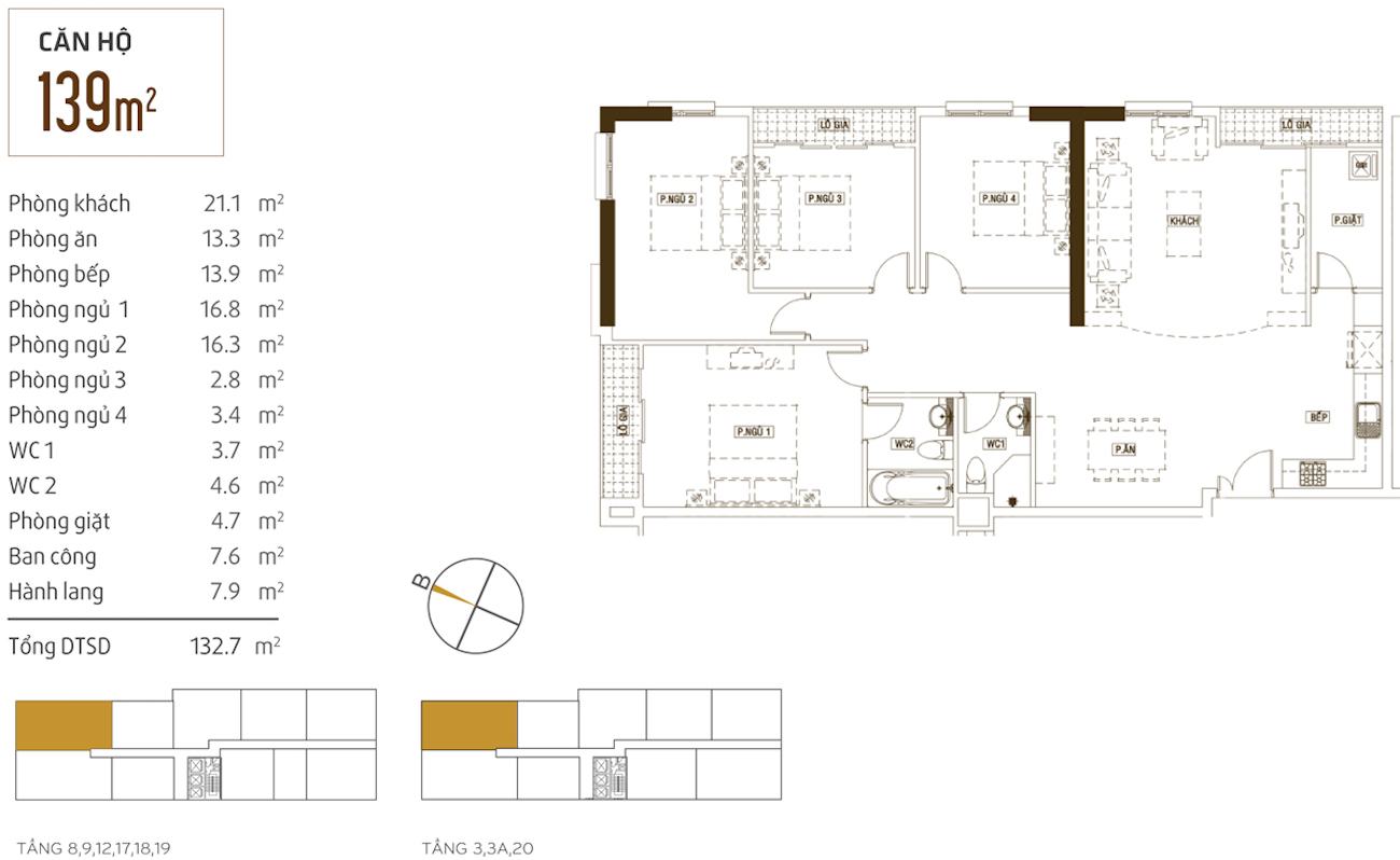
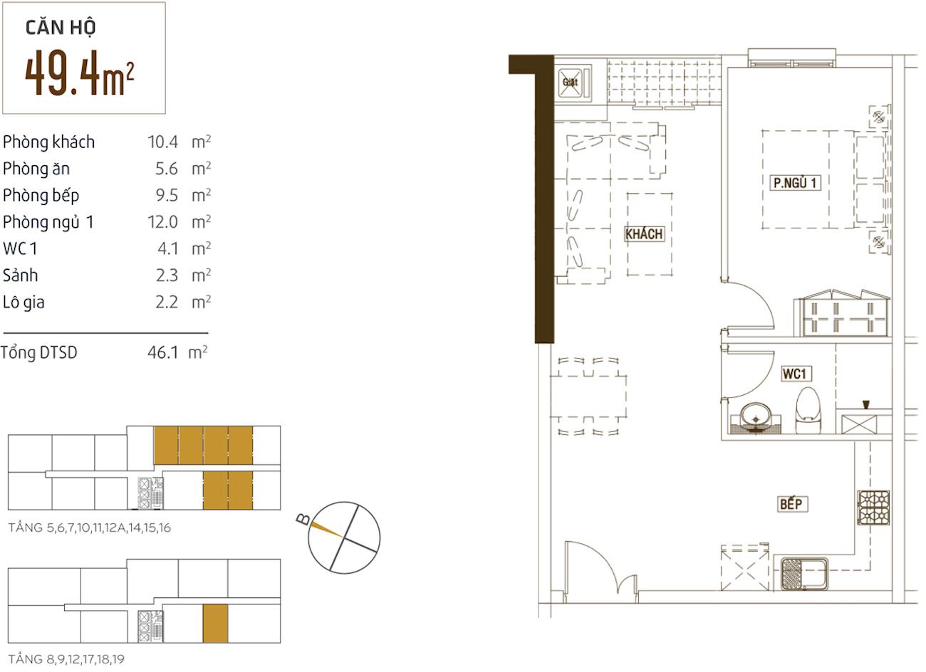
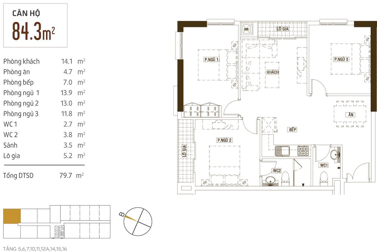
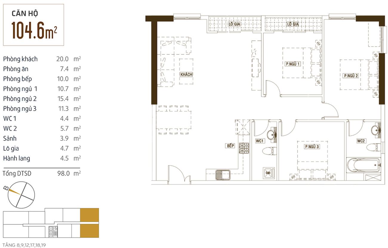
THIẾT KẾ CĂN HỘ DỰ ÁN GRAND RIVERSIDE
Thiết kế dự án Grand Riverside được các kiến trúc sư kinh nghiệm cao với con mắt thẩm mỹ chuyên nghiệp thiết kế theo lối kiến trúc châu âu cổ điển không kém phần sang trọng, tất cả các căn phòng đều lấy ánh sáng và gió tự nhiên rất thông thoáng.
Nội thất bên trong Grand Riverside được thiết kế rất tinh tế và hài hòa từ phòng ngủ nhỏ, phòng ngủ lớn cho đến phòng khách được bày trí hết sức hợp lý và chuyên nghiệp.Đặc biệt căn hộ Grand Riverside có các loại diện tích đa dạng từ 49 – 139m2 ( 1 – 4 phòng ngủ) có cả penthouse trên tầng 21, 22 đáp ứng nhu cầu đa dạng đối tượng khách hàng cả mua để ở lẫn đầu tư.


NHÀ MẪU DỰ ÁN GRAND RIVERSIDE
Nhà mẫu dự án Grand Riverside được thiết kế phong cách Châu Âu vô cùng sang trọng và sáng tạo, Căn hộ Grand Riverside với 3 mặt view sông có tầm nhìn xa, bao quát trung tâm Sài Gòn.

NỘI THẤT BÀN GIAO CĂN HỘ GRAND RIVERSIDE
Trong tất cả các dự án căn hộ Grand Riverside Q4, đều được chủ đầu tư Hồng Hà trang bị trang thiết bị nội thất cao cấp tiêu chuẩn 5 sao.
BẢNG GIÁ VÀ PHƯƠNG THỨC THANH TOÁN GRAND RIVERSIDE
Dự án Grand Riverside đã bàn giao và đi vào hoạt động.
Dự án Grand Riverside đang được chào bán trên thị trường hiện nay có giá khoảng 50 – 55 triệu/1m2.
Please enter the 6-digit OTP sent to your email.
Time remaining: 05:00