Chung cư Vạn Đô nằm trong cụm chung cư Khánh Hội 1, Tôn Thất Thuyết trong khu vực quy hoạch xây dựng công viên Nguyễn Kiệu, nhà trẻ, cao ốc văn phòng cho thuê. Chung cư Vạn Đô tọa lạc ngay mặt tiền đường Bến Vân Đồn có vị trí di chuyển thuận tiện về Quận 1, Quận 5 sở hữu tầm nhìn tuyệt đẹp về trung tâm Sài Gòn phồn hoa nên có ưu thế về cho thuê căn hộ dịch vụ và căn hộ văn phòng.
Tên dự án: Chung cư Vạn Đô
Vị trí: 348 Bến Vân Đồn, Phường 1, Quận 4, Thành phố Hồ Chí Minh.
Chủ đầu tư: FICO
Tổng diện tích: 4.832 m2
Diện tích xây dựng: 34.000 m2
Mật độ xây dựng: 33,4%
Quy mô: 3 block cao 16 tầng, 286 căn hộ.
Diện tích: từ 57,35 m2 đến 108,60 m2
Bàn giao: tháng 04/2008
Công ty Vật liệu Xây dựng số 1 là tiền thân của chủ đầu tư FiCO. Năm 1995, chủ đầu tư FiCO được thành lập với tổng số 8 đơn vị thành viên. Lĩnh vực kinh doanh chính của chủ đầu tư FiCO là sản xuất vật liệu xây dựng cơ bản như gạch, ngói XD, gạch Block, gạch ốp lát, khai thác và chế biến khoáng sản,… Có thể nói chủ đầu tư FiCO được xêp vào hàng ngũ những công ty kinh doanh vật liệu xây dựng hàng đầu Việt Nam, là đơn vị uy tín, chất lượng và có nhiều năm kinh nghiệm trong lĩnh vực.
Sau nhiều năm hoạt động trên thị trường chủ đầu tư FiCO đã có được lòng tin và sự tín nhiệm của khách hàng và đối tác, tiếp đó công ty cũng đã có kế hoạch kinh doanh qua lĩnh vực bất động sản. Với sự tìm hiểu và chiến lược rõ ràng từ ban lãnh đạo mà chủ đầu tư FiCO cũng đã đạt được nhiều thành tựu trong lĩnh vực mới này.
Công ty Vật liệu Xây dựng số 1 là tiền thân của chủ đầu tư FiCO. Năm 1995, chủ đầu tư FiCO được thành lập với tổng số 8 đơn vị thành viên. Lĩnh vực kinh doanh chính của chủ đầu tư FiCO là sản xuất vật liệu xây dựng cơ bản như gạch, ngói XD, gạch Block, gạch ốp lát, khai thác và chế biến khoáng sản,… Có thể nói chủ đầu tư FiCO được xêp vào hàng ngũ những công ty kinh doanh vật liệu xây dựng hàng đầu Việt Nam, là đơn vị uy tín, chất lượng và có nhiều năm kinh nghiệm trong lĩnh vực.
Sau nhiều năm hoạt động trên thị trường chủ đầu tư FiCO đã có được lòng tin và sự tín nhiệm của khách hàng và đối tác, tiếp đó công ty cũng đã có kế hoạch kinh doanh qua lĩnh vực bất động sản. Với sự tìm hiểu và chiến lược rõ ràng từ ban lãnh đạo mà chủ đầu tư FiCO cũng đã đạt được nhiều thành tựu trong lĩnh vực mới này.
Liên kết vùng chung cư Vạn Đô
Căn hộ chung cư Vạn Đô là dự án bất động sản căn hộ Q.4 tầm trung, nằm bên dòng sông Bến Vân Đồn nên thừa hưởng không khí mát mẻ, gần gũi thiên nhiên. Cùng với đó là hệ thống tiện ích bên trong hoàn chỉnh, kiến tạo cuộc sống hàng ngày cao cấp cho cư dân. Chỉ cách vài bước chân, bạn và gia đình đã thuận lợi tìm được những dịch vụ mình cần từ trung tâm thương mại, cafe, khu giải trí đến hồ bơi, gym, spa,… Ngoài ra có đội ngủ bảo vệ được trang bị đầy đủ nghiệp vụ, có hệ thống PCCC, hệ thống xử lý rác thải, hút khói, khử mùi và các tiện ích sinh hoạt khác, tạo ra sự thư giãn và thanh bình cho những người dân sống tại chung cư.
Chung cư Vạn Đô gồm một tòa nhà cao 16 tầng, nằm trên diện tích đất hơn 4.800 m2, với mật độ xây dựng 33,4% và tổng diện tích sàn xây dựng, không tính tầng hầm là hơn 34.000 m2. Tại đây có bãi để xe rộng, tầng một dành cho khu thương mại và cảnh quan, tầng lửng và tầng hai bố trí các khu văn phòng, thương mại, sinh hoạt cộng đồng, có hệ thống 6 thang máy, 3 thang bộ đôi.
Ở đây, công tác an ninh được tổ chức chặt chẽ, có đội ngũ bảo vệ được trang bị đầy đủ nghiệp vụ, có hệ thống PCCC, hệ thống xử lý rác thải, hút khói, khử mùi và các tiện ích sinh hoạt khác, tạo sự thoải mái và thanh bình cho người dân sống tại chung cư.
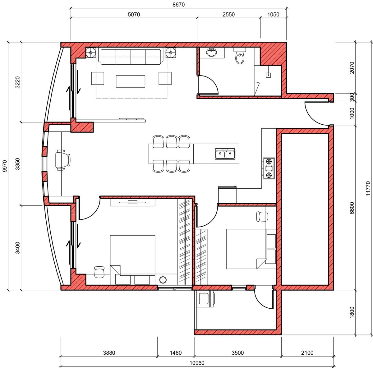
Với mật độ xây dựng thấp, Các căn hộ được bố trí từ tầng 3 đến tầng 15, mỗi tầng chỉ có 24 căn hộ có diện tích từ 57,35 m2 đến 108,60 m2 gồm 1 đến 3 phòng ngủ, phòng khách, nhà bếp, khu vệ sinh. Ngoài ra còn có căn Penhouse có diện tích 150 m2.
Thiết kế từ 1 đến 3 phòng ngủ, phòng khách, phòng bếp, nhà vệ sinh, ban công tiếp xúc không gian ngoài, thông thoáng tạo cảm giác dễ chịu, tầm nhìn cảnh quan dễ chịu.
Căn hộ Vạn Đô được thiết kế theo tiêu chuẩn hiện đại có đầy đủ các tiện nghi và công trình tiện ích phục vụ cộng đồng dân cư sinh sống tại đây như thang máy, hệ thống bảo vệ, vệ sinh, khu sinh hoạt cộng đồng.
Tất cả các phòng trong chung cư Vạn Đô đều tiếp xúc trực tiếp với ngoại khu để tạo không khí trong lành và cảm giác gần gũi với thiên nhiên. Trang thiết bị nội khu căn hộ là các thương hiệu gạch Đồng Tâm, cửa Hòa Bình, sàn gỗ Picenza, thiết bị vệ sinh Inax và American Standard… Căn hộ xây dựng hoàn thiện, trang bị sẵn máy lạnh, kệ bếp và máy hút khói.
Chung cư Vạn Đô đã được hoàn thiện và bàn giao cho khách hàng vào tháng 04/2008.
Khách hàng quan tâm mua giao dịch công chứng sang tên ngay.
Tham khảo giá sang nhượng trên thị trường hiện tại từ: 39 – 42 triệu/m²
Please enter the 6-digit OTP sent to your email.
Time remaining: 05:00