Nhà Định Danh - Mua bán nhà đất
  • Trang chủ
0919 358 968
Nhà Định Danh - Mua bán nhà đất
  • Trang chủ
0919 358 968
Dự án Căn hộ

Botanic Towers

Liên hệ: 0919 358 968

312 Nguyễn Thượng Hiền, Phường 5, Quận Phú Nhuận, TP. HCM

Tổng quan

|
Mã MKR-24282

Thông tin

Botanic Towers là một ốc đảo xanh giữa lòng thành phố với vị trí giao thông vô cùng thuận lợi. Với diện tích khuôn viên 5013m2 nhưng diện tích sàn xây dựng chỉ 2010m2 (chiếm tỷ lệ 40,1%), Botanic Towers là một nơi lý tưởng để con người có thể hoà mình và tận hưởng bầu không khí trong lành do cây xanh mang đến đồng thời vẫn hưởng được sự tiện nghi và thoải mái do những tiện ích hiện đại mang lại.

THÔNG TIN TỔNG QUAN DỰ ÁN BOTANIC TOWERS QUẬN PHÚ NHUẬN

  • Dự án: Botanic Towers
  • Chủ đầu tư: Công ty CP Đầu tư Xây dựng Phú Hưng Gia (PHG)
  • Vị trí tọa lạc: 312 Nguyễn Thượng Hiền, Phường 5, Quận Phú Nhuận, TP. HCM
  • Quy mô diện tích: 5,013 m2
  • Mật độ xây dựng: 42%
  • Loại hình sản phẩm: căn hộ chung cư
  • Số lượng căn hộ: 268
  • Diện tích căn hộ: 88m2 – 223m2
  • Quy mô triển khai: 2 tòa tháp chung cư cao cấp 18 tầng
  • Khởi công: 2004
  • Hoàn thành: 2006

GIỚI THIỆU CHỦ ĐẦU TƯ DỰ ÁN BOTANIC TOWERS

Công ty CP Đầu tư Xây dựng Phú Hưng Gia (PHG) được thành lập vào năm 2004. Khởi đầu, PHG là một nhà đầu tư bất động sản tại Tp.HCM với sự thành công khu căn hộ cao cấp – Botanic Towers.

Công ty CP Đầu tư Xây dựng Phú Hưng Gia hiện vẫn đang tiếp tục đầu tư & phát triển nhãn hiệu căn hộ cao cấp Botanic trên toàn quốc. Để phát triển thành công ty vững mạnh trong cộng đồng, PHG mở rộng hoạt động kinh doanh trong lĩnh vực xây dựng, thương mại, cho thuê và môi giới bất động sản.

Trong lĩnh vực xây dựng, Phú Hưng Gia hoạt động với tư cách là nhà thầu chính, quản lý dự án, và là nhà thiết kế/xây dựng cho các dự án công nghiệp trong cả nước. Phú Hưng Gia được thừa hưởng nhiều kinh nghiệm về hệ thống quản lí xây dựng chuyên nghiệp thông qua sự hỗ trợ mạnh mẽ từ công ty mẹ – Coteccons. Và kết quả là bộ phận xây dựng công ty PHG đang phát triển trong việc cung cấp các dịch vụ xây dựng cho các dự án cỡ vừa ở Việt Nam.

Ngoài ra, PHG còn cung cấp các dịch vụ như lập dự toán, lập kế hoạch và tiến độ, cung cấp vật liệu, lựa chọn cẩn thận các nhà thầu phụ với giá cả cạnh tranh.Hơn thế nữa, công ty còn thực hiện quản lí dư án với phương thức “trao tay” – từ lúc chuẩn bị cho đến lúc xây dựng hoàn tất với chất lượng tốt, đúng tiến độ và sự an toàn theo các yêu cầu đưa ra của khách hàng. Những chuyên viên bất động sản của PHG sẽ cung cấp cho quý khách những thông tin chính xác, cụ thể để khách hàng có những quyết định tối ưu cho việc đầu tư của mình.

VỊ TRÍ CĂN HỘ BOTANIC TOWERS

Dự án được triển khai xây dựng với vị trí tọa lạc chiến lược, được đánh giá cao ngay mặt tiền đường Nguyễn Thượng Hiền và có kết nối với đường Nguyễn Văn Đậu.

Từ dự án Botanic Tower tới hệ thống các trường học các cấp nhanh chóng chỉ trong khoảng vài phút đi lại. Đặc biệt là giáp tới khu vực trung tâm quận 1 và quận Bình Thạnh  giúp cư dân có cuộc sống chất lượng nhất.

5 phút tới với trường tiểu học Nguyễn Đình Chiểu
15 phút tới trung tâm quận 1
10 phút đến công viên Hoàng Văn Thụ
20 phút đến sân bay Tân Sơn Nhất

TIỆN ÍCH DỰ ÁN BOTANIC TOWERS

Tiện ích nội khu dự án Botanic Towers

Với diện tích khuôn viên 5013 m2 nhưng diện tích sàn xây dựng chỉ 2010 m2(chiếm mật độ 40,1%), Botanic Towers Phú Nhuận là một nơi hoàn hảo để con người có thể hoà mình và tận hưởng bầu không khí trong lành do cây xanh đem đến đồng thời nhưng vẫn hưởng được sự tiện nghi và sảng khoái do những tiện ích hiện đại mang lại.

Toàn bộ dự án căn hộ Botanic Towers hình thành nên một ốc đảo thu nhỏ, cung cấp đa số các nhu cầu về dịch vụ và sinh hoạt, phục vụ cho toàn khu: tầng hầm, hồ bơi, công viên, siêu thị, cửa hàng, tiệm làm tóc, phòng tập thể dục, ngân hàng, nhà trẻ, sân chơi thiếu nhi, bảo vệ, bảo trì, nhà hàng, trung tâm y tế…

Và để trốn chạy sự nóng bức trong những ngày hè, bạn có thể dầm mình trong hồ bơi xanh có diện tích gần 200m2 được khéo léo bố trí phía sau chung cư Botanic Towers dẫn đến một thế giới riêng trong sạch.

Để chắc chắn cơ sở giao thông nội bộ thông suốt, tránh kẹt thang trong giờ cao điểm, chúng tôi đã chọn thang máy công nghệ hiện đại hiệu Schindler được nhập từ Đức làm thang vận chuyển hành khách, hàng hóa và công tác PCCC cho Cao ốc Botanic Towers.

Hệ thống thang máy được bố trí trong hệ khung chịu lực của toàn bộ khối cơ sở giao thông gắn kết 2 khối chung cư gồm:

  • 3 thang vận chuyển hành khách
  • 1 thang vận chuyển hàng hóa và chuyên dụng cho PCCC
  • Hệ thống thang máy có trang bị hệ thống báo cháy khi có sự cố.

Được quản lý bởi một trong những công ty quản lý bất động sản hàng đầu Việt Nam, các cư dân sống trong căn hộ chung cư cao cấp Botanic Towers sẽ được hưởng một đời sống thư thái và tiện nghi. Với đội ngũ nhân viên năng động và phong cách quản lý chuyên nghiệp theo tiêu chuẩn Quốc tế, tất nhiên là cư dân Botanic Towers sẽ có thể tận hưởng đời sống một phương pháp xuất sắc nhất.

Tiện ích ngoại khu dự án Botanic Towers

Cùng với đó là trong phạm vi chỉ vài km đã giúp cư dân tiếp cận với hàng loạt tiện ích dịch vụ hiện hữu như: hệ thống trường học các cấp; bệnh viện; trung tâm thương mại; siêu thị mua sắm;…

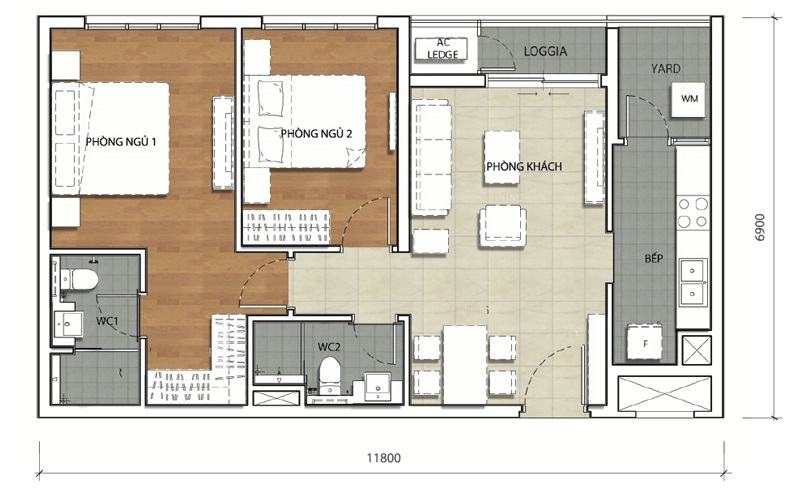
MẶT BẰNG CHUNG CƯ BOTANIC TOWERS

Botanic Towers có tổng diện tích quy hoạch xây dựng khuôn viên rộng khoảng 5013m2, diện tích sàn xây dựng chỉ 2.010m2.

Hai tòa tháp của căn hộ có chiều cao 18 tầng + 1 tầng hầm. Dự án đã cung cấp cho thị trường 265 căn hộ có diện tích đa dạng từ 86m² – 297m².

THIẾT KẾ CĂN HỘ DỰ ÁN BOTANIC TOWERS

Botacnic có 2 tòa tháp căn hộ cao 18 tầng cùng với đó có cả tầng hầm. Khu vực tầng trệt được bố trí các tiện ích dịch vụ như: siêu thị mua sắm; ngân hàng; hệ thống nhà hàng; phòng khám sức khỏe; nhà trẻ; phòng gym; spa; yoga;…

Các căn hộ của dự án có tổng cộng 268, diện tích từ 88m2 – 223m2 có từ 2-4 phòng ngủ, thiết kế chia thành các khu vực và có từ 1 – 2 ban công rộng lớn. Tại các căn hộ có diện tích lớn còn có thêm phòng sinh hoạt chung, phòng kho.

Độc đáo nhất là khách hàng có thể lựa chọn căn hộ penthouse với thiết kế thêm tầng lầu phụ, có cả khoảng sân vườn nhỏ giúp hình thành không gian sống thơ mộng. Chính bởi thế mà dự án Botanic là nơi lý tưởng để sống mà còn là nơi thư giãn hoàn hảo, nghỉ dưỡng sau những khoảng thời gian mệt mỏi, áp lực công việc.

NHÀ MẪU DỰ ÁN BOTANIC TOWERS

Các căn hộ đa dạng diện tích thiết kế thông thoáng theo xu hướng sống xanh giúp khách hàng có nhiều sự lựa chọn cho nơi an cư, đầu tư sinh lời của mình. Cùng với đó, dự án dành phần lớn diện tích cho cảnh quan sống xanh, mặt nước, công viên nhằm giúp cư dân có cuộc sống tiện nghi nhất.

NỘI THẤT BÀN GIAO CĂN HỘ BOTANIC TOWERS

Dự án Botanic Towers bàn giao hoàn thiện nội thất cơ bản. Các căn hộ tại dự án Cao ốc Botanic Towers cung cấp cho khách hàng đa dạng tiện ích, theo phân khúc cao cấp. Đặc biệt là được trang bị nội thất cao cấp tới từ các thương hiệu nổi tiếng.

Ngay trong tòa nhà của dự án đã được chủ đầu tư trang bị hệ thống thang máy tốc độ cao; hệ thống PCCC hiện đại;…

Cao ốc Botanic Towers nguồn diện lấy từ lưới điện của toàn thành phố đảm bảo sự cung cấp điện liên tục. Cùng với đó là nguồn nước được đảm bảo vệ sinh an toàn, tuyệt đối, lọc khử trùng bằng tia UV.

BẢNG GIÁ VÀ PHƯƠNG THỨC THANH TOÁN BOTANIC TOWERS

Dự án Botanic Towers đã bàn giao và đi vào hoạt động.

Hiện tại, dự án Botanic Towers được chào bán trên thị trường với giá khoảng từ 40 – 45 triệu/1m2.

    ĐĂNG KÝ NHẬN BÁO GIÁ & TÀI LIỆU DỰ ÁN

    HOTLINE, ZALO 0919 358 968

    Bất động sản dành cho bạn

    Nhà đất bán
    7

    MẶT TIỀN HẺM 4M KINH DOANH ÂU CƠ 62M2 3 TẦNG BTCT CHỈ 9.9 TỶ

    Việt Nam
    Nhà phố

    9,900,000,000,00

    3
    3
    62 m2

    Added: 02/04/2026

    Dự án
    1

    SWISS-BELRESORT EAGLES MŨI NÉ

    Xuân Thủy, Tổ 2, KP Long Sơn, P., Mũi Né, Tp. Phan Thiết, Mũi Né, Việt Nam
    Căn hộ

    Liên hệ: 0919 358 968

    Added: 05/04/2020

    Dự án

    Khu dân cư Chánh Hưng

    137, ĐT741, Chánh Phú Hoà, Bến Cát, Bình Dương, Vietnam
    Đất nền

    Liên hệ: 0919 358 968

    Added: 08/09/2021

    Liên hệ ngay 0919 358 968
    Nhà Định Danh – Mua bán nhà đất
    • Login
    Forget Password?

    OTP Verification

    Please enter the 6-digit OTP sent to your email.

    Time remaining: 05:00