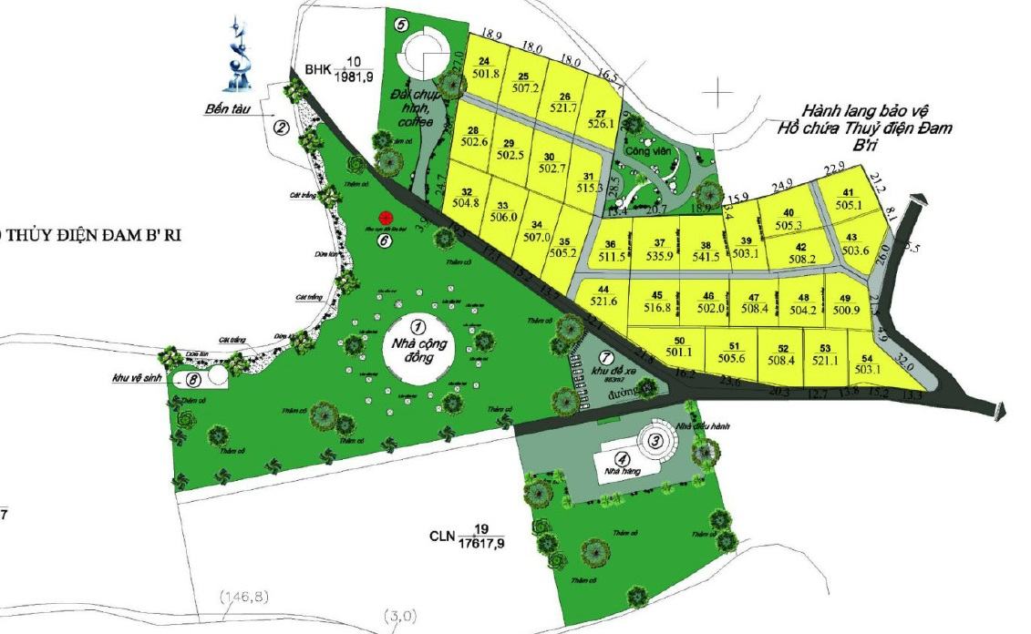
Kết nối toàn diện: Tọa lạc tại vị trí đắc địa bậc nhất khu vực. Amavi Farm nằm ở điểm cuối của cung đường quy tụ trên 30 tổ hợp bất động sản nghỉ dưỡng lớn nhỏ, là trục đường chính của thôn 4 xã Lộc Tân, có thể dễ dàng kết nối với các xã huyện lân cận như: trung tâm Tp.Bảo Lộc, xã Đambri, huyện Đạ Tẻh,… Bên cạnh đó, Amavi nằm ngay đối diện đường cao tốc Dầu Giây – Liên Khương (kết nối Tp.HCM – Đà Lạt), và cách nút ra cao tốc chỉ 4km.
Hội tụ đủ các yếu tố để nghỉ dưỡng: Địa thế “tựa sơn – hướng thủy” dựa vào rừng núi nguyên sinh, tiếp giáp hồ nước xanh mát. Ngoài ra, Amavi Farm còn nằm trong quần thể Amavi Resort Thiền – Detox nên được thừa hưởng các dịch vụ phục vụ cho sức khỏe của bạn.







