Mặt bằng Block 4 Gem Riverside
MẶT BẰNG TỔNG THỂ GEM RIVERSIDE

VỊ TRÍ CĂN HỘ ĐIỂN HÌNH GEM RIVERSIDE

VỊ TRÍ CĂN HỘ DUPLEX VILLA BLOCK 4 GEM RIVERSIDE

VỊ TRÍ CĂN HỘ PENTHOUSE BLOCK 4 GEM RIVERSIDE

MẶT BẰNG TẦNG ĐIỂN HÌNH BLOCK 4 GEM RIVERSIDE

MẶT BẰNG TẦNG 1 – 2 BLOCK 4 GEM RIVERSIDE

MẶT BẰNG TẦNG 3 BLOCK 4 GEM RIVERSIDE

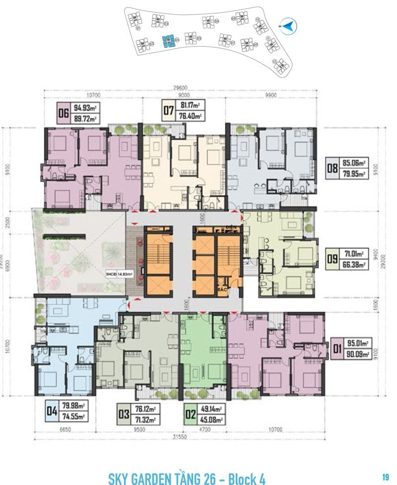
MẶT BẰNG SKY GARDEN BLOCK 4 TẦNG 25 – 26 GEM RIVERSIDE


MẶT BẰNG SKY GARDEN BLOCK 4 TẦNG 32 – 33 GEM RIVERSIDE

CĂN SỐ 1 – Diện tích 95,01 m2 GEM RIVERSIDE

THÔNG TIN CĂN HỘ
Lối vào(1) + Bếp(2) + Bàn ăn(3) + Phòng khách(4): 37.19 m2
Lô gia: 4.25 m2
Phòng ngủ 01: 12.45 m2
Phòng ngủ 02: 14.44 m2
Phòng ngủ 03: 15.82 m2
Vệ sinh 1: 4.12 m2
Vệ sinh 2: 3.42 m2
Sân phơi: 3.32 m2
CĂN SỐ 2 – Diện tích 49,14 m2 GEM RIVERSIDE

THÔNG TIN CĂN HỘ
Lối vào(1) + Bếp(2) + Bàn ăn(3) + Phòng khách(4): 27.7 m2
Lô gia: 4.26 m2
Phòng ngủ 01: 10.84 m2
Vệ sinh 1: 4.10 m2
Sân phơi: 2.24 m2
CĂN SỐ 3 – Diện tích 76,12 m2 GEM RIVERSIDE

THÔNG TIN CĂN HỘ
Lối vào(1) + Bếp(2) + Bàn ăn(3) + Phòng khách(4): 34.24 m2
Lô gia: 3.96 m2
Phòng ngủ 01: 10.89 m2
Phòng ngủ 02: 16.32 m2
Vệ sinh 1: 4.06 m2
Vệ sinh 2: 4.08 m2
Sân phơi: 2.57 m2
CĂN SỐ 4 – Diện tích 79,98 m2 GEM RIVERSIDE


THÔNG TIN CĂN HỘ
Lối vào(1) + Bếp(2) + Bàn ăn(3) + Phòng khách(4): 41.82 m2
Lô gia: 4.02 m2
Phòng ngủ 01: 10.21 m2
Phòng ngủ 02: 14.22 m2
Vệ sinh 1: 3.55 m2
Vệ sinh 2: 3.51 m2
Sân phơi: 2.65 m2
CĂN SỐ 5 – Diện tích 80,76 m2 GEM RIVERSIDE

THÔNG TIN CĂN HỘ
Lối vào(1) + Bếp(2) + Bàn ăn(3) + Phòng khách(4): 39.48 m2
Lô gia: 3.86 m2
Phòng ngủ 01: 13.66 m2
Phòng ngủ 02: 12.41 m2
Vệ sinh 1: 3.90 m2
Vệ sinh 2: 3.75 m2
Sân phơi: 3.70 m2
CĂN SỐ 6 – Diện tích 94,93 m2 GEM RIVERSIDE

THÔNG TIN CĂN HỘ
Lối vào(1) + Bếp(2) + Bàn ăn(3) + Phòng khách(4): 37.13 m2
Lô gia: 4.25 m2
Phòng ngủ 01: 12.45 m2
Phòng ngủ 02: 14.42 m2
Phòng ngủ 03: 15.82 m2
Vệ sinh 1: 4.12 m2
Vệ sinh 2: 3.42 m2
Sân phơi: 3.32 m2
CĂN SỐ 7 – Diện tích 81,17 m2 GEM RIVERSIDE

THÔNG TIN CĂN HỘ
Lối vào(1) + Bếp(2) + Bàn ăn(3) + Phòng khách(4): 34.17 m2
Lô gia: 3.95 m2
Phòng ngủ 01: 12.05 m2
Phòng ngủ 02: 20.47 m2
Vệ sinh 1: 4.14 m2
Vệ sinh 2: 3.82 m2
Sân phơi: 2.57 m2
CĂN SỐ 8 – Diện tích 85,06 m2 GEM RIVERSIDE

THÔNG TIN CĂN HỘ
Lối vào(1) + Bếp(2) + Bàn ăn(3) + Phòng khách(4): 37.41 m2
Lô gia: 3.90 m2
Phòng ngủ 01: 12.65 m2
Phòng ngủ 02: 18.04 m2
Vệ sinh 1: 3.97 m2
Vệ sinh 2: 3.90 m2
Sân phơi: 5.19 m2
CĂN SỐ 9 – Diện tích 70,01 m2 GEM RIVERSIDE

THÔNG TIN CĂN HỘ
Lối vào(1) + Bếp(2) + Bàn ăn(3) + Phòng khách(4): 30.75 m2
Lô gia: 4.02 m2
Phòng ngủ 01: 10.66 m2
Phòng ngủ 02: 14.44 m2
Vệ sinh 1: 3.78 m2
Vệ sinh 2: 3.75 m2
Sân phơi: 3.61 m2
Lỗi: Không tìm thấy biểu mẫu liên hệ.